《GB/T 30806-2014 建筑用絕熱制品 在指定溫度濕度條件下尺寸穩定性的測試方法》是中國的國家標準,屬于建筑用絕熱制品測試方法的一部分,主要涉及在指定溫度濕度條件下建筑用絕熱制品尺寸穩定性的測試方法。
一、范圍:
本標準規定了在規定溫度和相對濕度的條件下,測定建筑用絕熱制品尺寸穩定性的儀器和方法。
本標準列出了多種試驗環境可供選擇。
本標準適用于絕熱制品。
二、試驗項目:
穩定性測試方法。
三、試驗設備:
恒溫恒濕試驗箱。
四、設備廠商:
環儀儀器
.jpg)
五、試驗程序(部分):
試樣的放置
將試樣水平或垂直放置在試驗箱內,試樣之間距離不小于25 mm。將試樣放置在網狀的硬質金屬上或是帶孔的金屬板上,這樣試樣周圍的空氣可以自由流通。試樣不應受加熱元件的直接輻射。
試驗的時間
試驗持續時間為(24±1)h或(48±1)h。如果相關產品標準中有要求,可以采用其他的試驗時間,或由雙方商定。
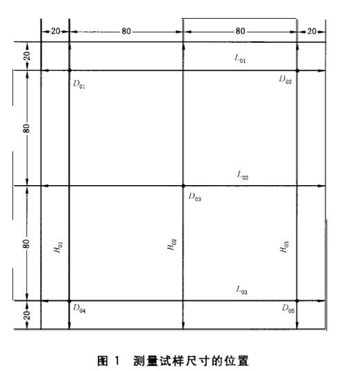
試驗后的尺寸測量
將試樣從試驗環境中取出,放置在(23±2)℃,相對濕度(50±5)%的環境中至少(3±1)h。測量試樣最終的長度、寬度、厚度尺寸(分別記為Lt、Bt和Dt)在和初始測量的位置同樣的位置測量,記錄下讀數 ,測量位置見圖1。
檢查試樣的外觀。

該標準的目的是通過標準化的試驗方法,評估建筑用絕熱制品在特定溫度濕度條件下的尺寸穩定性。這有助于確保這些絕熱制品在實際使用中能夠保持穩定的尺寸,提高建筑的保溫效果。通過這種測試,可以了解制品在不同溫度和濕度條件下的尺寸變化情況,從而為產品的質量控制和性能評估提供依據。








